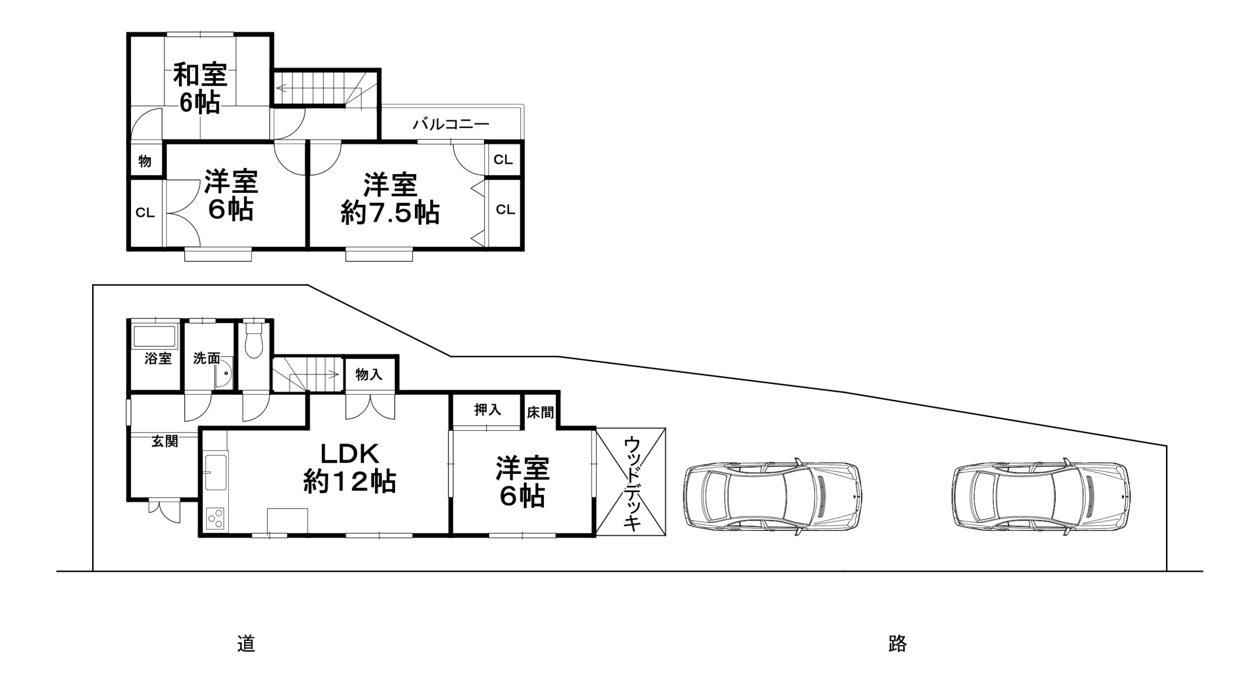
スタッフブログ 橋本市隅田町中下 売り一戸建て オール電化 南向き 4LDK 駐車場2台可 新規販売開始しました! 【新着物件情報!】 橋本市隅田町中下 売り一戸建て オール電化 南向き 4LDK 駐車場2台可 新規販売開始しました! 【新着物件情報!】 橋本市隅田町中下 売り一戸建て 価格 370 万円令和8年1月吉日 新規販売開始しました! ★オール電化住宅 ★4LDK!★駐車場2台可! ★南向き!陽当たり良好! ご内覧・ご内見予約はお気軽に!ハウジングプラザ プラザ株式会社 TEL0736-39-3033 ↑ ↑ 上記物件詳細はコチラ ↑ ↑ ↑ ↑ 上記物件詳細はコチラ ↑ ↑